DEKCASSETTE STANDARD
DEKCASSETTE STANDARD
DEKCASSETTE STANDARD je variantou produktové linie DEKMETAL DEKCASSETTE, která zabezpečí originální funkcionalistický vzhled vašich fasád.
Jako jediná z této skupiny produktů má přiznané připevňovací prvky a pevnou šířku spáry. Samotná velikost kazet je však plně přizpůsobitelná požadavkům a přáním architekta či investora.
Technický list │ Dokumenty │ Projekční detaily │ Video - Skladba │ Materiály a barvy │ Perforace
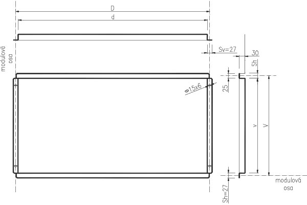
| Rozměry kazet | (mm) |
| skladebná délka D | 400–6 000 |
| skladebná výška V | 100–500 (800*) |
| celková délka d | D + 23 |
| celková výška v | V + 23 |
| hloubka | 30 |
| horizontální spára Sh | 27 |
| vertikální spára Sv | 27 |
| tloušťka plechu | 0.75* / 1.00 / 1.20* |
| * výroba kazety výšky 500–800 mm a použití tl. plechu 0,75 mm a 1,20 mm po konzultaci s výrobcem | |
Technický design
Díky viditelným spojovacím prvkům má fasáda z kazet STANDARD jednoduchý industriální vzhled.
Snadná demontáž
Kazety DEKCASSETTE STANDARD je možné demontovat lokálně kdekoliv v ploše fasády.
Široké možnosti
Jako všechny produkty linie DEKCASSETTE je i kazeta STANDARD dodávána v mnoha materiálových a barevných variantách.
Ke stažení
Katalog designové perforace PDF Download |
Katalog fasád 2022 PDF Download |
Montážní návod PDF Download |
POV - Dekcassette Standard Al - SP60 PDF Download |
Prohlášení o vlastnostech PDF Download |
Prohlášení o vlastnostech (Al) PDF Download |
Prohlášení o vlastnostech (Corten) PDF Download |
Prohlášení o vlastnostech (Nosný rošt) PDF Download |
Prohlášení o vlastnostech (S355J2W) PDF Download |
Prohlášení o vlastnostech (TiZn) PDF Download |
Technický list - Dekcassette Standard PDF Download |
Technický list - Nosný Rošt PDF Download |



